Варианты конструкции наземной части
Особенности и нюансы
Строительство простого дачного туалета – несложная задача, однако стоит учитывать ряд нюансов, чтобы постройка была удобной в эксплуатации
Важно уделить внимание планированию и проектированию – продумать необходимо все, от расположения туалета до его типа (по принципу работы) и внешнего вида самого домика
Месторасположение стоит выбирать таким образом, чтобы оно было удобным для семьи и не доставляло дискомфорта жителям по соседству. Также сразу необходимо определиться, будет уборная с выгребом или нет – в случае ее наличия необходимо продумать свободный подъезд к постройке машины-ассенизатора.

Туалет на территории участка.
Также читайте: канализация на даче своими руками.
Нормы безопасности
Выбирая место под клозет, необходимо отталкиваться не только от личных пожеланий по удобству, но также принимать во внимание санитарные нормы, которые регулируют расположение подобных сооружений на участке
- Удаленность от источника воды – минимум 30 м. До водохранилища нужно выдержать расстояние в 30 м.
- Удаленность от построек для гигиены (летний душ, баня и др.) – 8 м.
- Удаленность от хозяйственных построек, предназначенных для содержания животных – 4 м.
- Удаленность от деревьев и кустарников – 4 и 1 м, соответственно.
- Удаленность от жилых сооружений – минимум 5 м, но лучше сделать большее расстояние.
- От соседских сооружений необходимо выдержать расстояние в 1 м.
От глубины залегания подземных вод будет зависеть, какой тип клозета строить – если вода находится на уровне выше 2 м, можно возводить конструкции без выгребной ямы. Если же глубина от 2,5 м и более, допускается строить туалеты с выгребом, в т. ч. люфт-клозеты.
Кроме перечисленных, есть дополнительные критерии для выбора места под уборную. Так, необходимо учитывать направление ветров – так удастся миновать распространение запаха во дворе.
Важно! Если планируется строительство туалета с выгребной ямой, предварительно проект необходимо согласовать с санитарно-эпидемиологической станцией. Условия установки сооружения могут отличаться в регионах, но в любом случае, слив отходов в землю будет расцениваться как нарушение закона.. Расположение туалета на участке
Расположение туалета на участке.
Литература
Домик для установки биотуалета
Устройство туалета в виде шалаша
Конструкция шалаша, в первую очередь, привлекательна простой и оригинальной формой. Постройки в таком дизайне обычно применяются под сооружение хозяйственных погребов. Теперь вот мода на «шалаши» подошла вплотную и к дачным туалетам.
Проекты треугольных призм с двухскатной кровлей быстро обретают популярность в обществе владельцев приусадебных хозяйств.
На замену классическим прямоугольным туалетам дачники всё чаще предпочитают ставить простые, но достаточно оригинальные формы треугольной трапеции. Так называемые туалеты-шалаши установлены и успешно обслуживают владельцев многих фазенд
Один из вариантов, представленный стандартным чертежом дачного туалета серии шалашей, возвышается на 2,5-3 метра по высоте и занимает площадь 1,2 (2.00) х 1,0 (1,5 м) по основанию.
Этих габаритов вполне достаточно человеку среднего роста и такой же средней комплекции для комфортного пребывания внутри помещения дачного туалета. Поэтому владельцы современных приусадебных хозяйств предпочитают строить туалет-шалаш именно по такому чертежу
Крупных финансовых затрат здесь не предвидится. Физическая нагрузка в процессе строительства тоже невелика. Из материалов обычно требуются:
- деревянный брус (50 х 50 мм);
- деревянный брус (150 х 150 мм);
- доска шпунтованная половая (140 х 20 мм);
- доска на обрешётку и обшивочная (100 х 12 мм);
- кровельный материал;
- лак, краска, крепёж.
Вовсе не обязательно ограничиваться только лишь применением указанных материалов. Учитывая разнообразие продуктов на строительном рынке, а также применяя простейшие чертежи дачного туалета под типичный шалаш, открываются широкие возможности в плане строительства и дизайна.
Так, вместо привычных досок с не меньшим успехом подойдёт листовая фанера. Обрешётку реечного типа удачно заменит сплошной настил. А вместо рубероида красиво ляжет на обрешётке битумная черепица. В общем, есть простор для неординарных идей.
Приложенные с удовольствием руки строителя создают вот такие конструкции шалашей, которые технически исполняют ещё и роль туалетов
Традиционными становятся конструкции подобного типа. Их чертежи распространяются повсеместно и применяются на практике.
Выбор места для постройки
Изготовление
Когда под туалет выбран участок, вы определились с типом системы утилизации отходов, а также придумали, какой будет надземная конструкция туалета – можно приступать к процессу. Далее мы расскажем и покажем на фото и видео, как поэтапно построить туалет с выгребной ямой на даче своими руками, используя чертежи с размерами.
В целом процесс можно разделить на такие шаги:
- Выкапываем выгреб.
- Закладываем фундамент.
- Сооружаем домик.
Для работы будем использовать следующий чертеж (параметры вы можете менять под свои потребности):

Чертеж.
Выгребная яма
Для работы могут потребоваться следующие инструменты:
- лопаты;
- уровень и рулетка;
- ручной бур;
- молоток;
- шуруповерт;
- шлифмашинка;
- лом/бур;
- лобзик.
Из материалов будем использовать:
- песок;
- цемент;
- щебень;
- арматура и металлическая сетка;
- плотная полиэтиленовая пленка.
Инструкция по обустройству ямы:
- Определите форму выгреба в соответствии с проектом туалета. Обычно это круглая или квадратная форма, может быть прямоугольной.
- При использовании накопительного резервуара правильно определите его расположение – входное отверстие должно располагаться на месте стульчака, второе – выходит за пределы постройки. В таком случае выгреб роется по форме емкости, прибавляя по 30 см с каждой стороны.
- На дно выгреба помещается толстый дренажный слой из крупных камней, кирпича.
- Укрепляем стенки выгреба. С этой целью фиксируем к ним сетку-рабицу и армирующую решетку. Для закрепления можно воспользоваться металлическими штырями.
- Стенки бетонируем слоем 5-10 см и дожидаемся полного высыхания. После оштукатуриваем.
- Сверху устанавливаем плиту перекрытия – она же будет служить фундаментом.
- Сверху на яму укладываем деревянные брусья, предварительно пропитанные защитным раствором. Можно вместо них использовать бетонные столбы. Эти конструкции нужно углубить по уровень земли.
- Поверхность застилается полиэтиленом, под люк и сидение оставляются отверстия и обрабатываются опалубкой.
- Сверху на пленку укладываем решетчатый каркас, заливаем все бетоном и дожидаемся высыхания. Готово, остается построить домик.

Устройство ямы.
Также читайте: выгребная яма без откачки.
Если планируется построить простой, дешевый туалет для редкого использования, яму можно обустроить покрышками. Пошаговый алгоритм действий простой:
- Выройте углубление по форме покрышек, прибавив 20 см в диаметре.
- Дно засыпьте щебнем, слоем 20 см.
- По центру выложите покрышки одна на другую, верхняя должна равняться с почвой.
- Пространство по бокам засыпьте песком и гравием, тщательно уплотняя слои.
- Сооружаем фундамент. По периметру вырываем углубление на 0,5 м. Заполняем его песком и щебнем по 10 см.
- Перекрываем полиэтиленовой пленкой.
- Создаем каркас. Для этого используем кирпичи, заливая цементом, либо арматуру с цементом.
- После высыхания бетона его нужно оштукатурить, покрыть рубероидом и поставить домик.

Яма из покрышек.
Если выгреб обустраивается при помощи бочки, алгоритм действий идентичный.

Выгреб из бочки.
Домик
Теперь приступаем к довольно творческой части – сооружению домика. Расскажем и покажем пошагово на фото с чертежами процесс изготовления дачного туалета своими руками.
Совет: постарайтесь делать конструкцию максимально легкой, чтобы грунт по максимально долго не проседал.
Конструкция домика может быть самой разной – «теремок», «шалаш», «мельница», «домик».

Виды туалетных домиков.
На фото ниже изображен черте простой конструкции теремка.

Чертеж домика туалета.
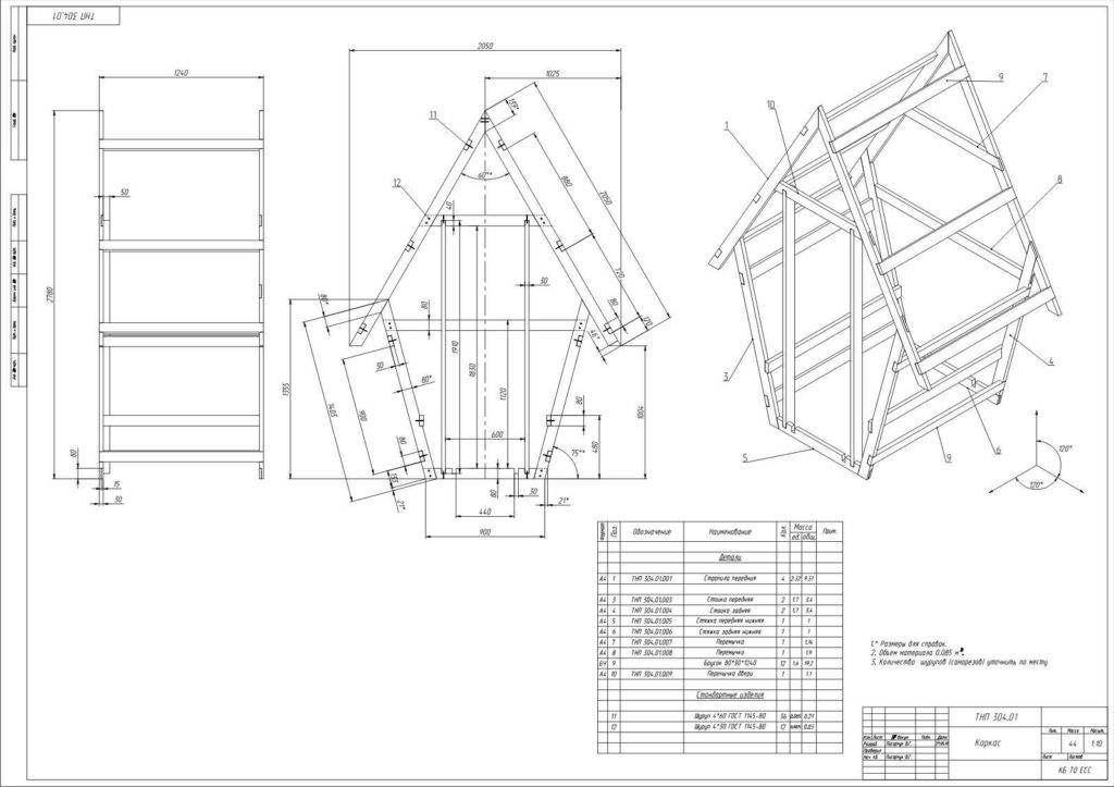
Для сооружения «шалаша» используйте следующий чертеж:

Чертеж конструкции типа шалаш.
Для простой кабинки («скворечник») воспользуйтесь этим чертежом:

Прямоугольная туалетная кабинка.
Изготовление максимально простое. По схеме необходимо сделать каркас из брусьев, оббить его досками. Далее уложить кровельный материал, поставить окна и двери. В завершение необходимо сделать внутреннюю отделку, оклеив стены обоями или покрасив краской.
Совет: сам стульчак необходимо приобрести из пластика с прямым отверстием. Устанавливать обычные керамические городские модели нельзя по причине их большого веса, а также внутреннего уклона для смыва.

Деревянный туалет внутри.
Таким образом, вы узнали, как построить уличный туалет на даче своими руками, используя для этого чертежи с размерами, фото и видео. Как видите, этот процесс несложный, но к обустройству стоит подойти ответственно, ведь постройка на долгое время определит комфорт пребывания на загородном участке.
Видео: дачный туалет своими руками.
Чертеж туалета «Теремок»
Делаем дачный унитаз для туалета своими руками
Унитаз для дачного туалета легко можно сделать своими руками. Совсем необязательно покупать готовую керамическую или пластиковую конструкцию. Достаточно построить сам туалет, а внутри оборудовать высокий выступ с отверстием, который будет выступать в роли пьедестала. Для комфортного пользования на отверстии размещается сиденье.

Пьедестал с пластиковым стульчаком
В редких случаях, к туалета также подводят водопровод. Наличие водяного затвора необходимо для унитаза с бачком. Пошаговая инструкция, как сделать унитаз для дачного туалета своими руками:
Когда яма выкопана, укреплена и оборудована седалищем, нужно установить унитаз на отверстие. Самостоятельно его можно сделать несколькими способами. Самый простой: соединить несколько досок для получения прямоугольника, размер которого будет меньше, чем отверстие. Полученная конструкция при помощи уголков и саморезов устанавливается на пьедестал. При желании, сверху доски можно оббить текстилем. Для долговечности рекомендуется обработать их антисептиком;
Более комфортный вариант – прикрепить на отверстие готовое сиденье. Это может быть любое сиденье, купленное в хозяйственном магазине. Для установки потребуется просверлить в седалище два отверстий для соединения крышки и отверстия. При помощи болтов, установленных в задней части накладки, нужно скрепить оба элемента между собой;
Еще один вариант – соорудить настоящий стульчак из древесины. Конструкция может быть любой: со спинкой, подлокотниками, подставками и без них. Размеры такого унитаза проще всего подбирать по параметрам обычного стула
Важно, чтобы он был эргономичным: достаточно высоким, удобным, устойчивым. Поверх деревянного помоста в качестве крышки также можно установить пластиковую накладку-сиденье.
Строительство туалетного домика
Обустройство выгребной ямы
Выбираем подходящий тип проекта
Для проектирования чертежа нужно определиться с типом туалета. Это может быть сортир с выгребной ямой или без нее. Кроме того, выгребную яму можно использовать с пользой для хозяйства и производить в ней компост.
Постройка с герметичной емкостью вместо выгреба будет уместна на участке, где грунтовые воды располагаются слишком близко к поверхности земли.
№1 — классический дачный туалет с выгребом
Самый распространенный и привычный проект простого туалета для дачи – модель с выгребной ямой. Принцип такой конструкции элементарный: все отходы попадают в глубокую яму, которая располагается непосредственно под туалетной будкой.
Если выгреб заполнился, вызывают ассенизатора, который откачивает все нечистоты, и туалетом можно пользоваться дальше.
Эта схема дачного туалета проверена временем. Основное ее преимущество – яму не нужно обслуживать довольно продолжительное время. Если сортир используют только в дачный сезон, можно и вовсе не столкнуться с необходимостью вызова ассенизатора
Поскольку душ на даче столь же необходим, как и уборная, некоторые пытаются совместить эти два проекта в один.
Если построить летний душ в одной части участка, а туалетный домик – в другой, вам придется изрядно поработать лопатой, ведь сточная яма нужна в обоих случаях.
Объединив удобства, можно значительно сократить трудозатраты на земляные работы и количество необходимых материалов.
№2 — пудр-клозет или сортир без ямы
Простой способ сделать чертеж туалета для дачного участка – спроектировать его по принципу пудр-клозет.
Такой вид сортира не предполагает наличия выгребной ямы, все отходы попадают в резервуар непосредственно под сиденьем унитаза. Это может быть пластиковый или металлический бак или ведро.
Поскольку главная беда подобных туалетов – неприятный запах, нечистоты присыпают (припудривают) адсорбирующими веществами, которые предохраняют уборную от появления специфического «амбре».

В туалетах подобного типа всегда присутствуют две емкости: для сбора отходов и для хранения присыпки. Емкости нужно регулярно очищать
В качестве адсорбента применяют древесную золу, торф, древесные опилки, песок. По большому счету, пудр-клозет с торфом является самодельной вариацией готовых биотуалетов промышленного производства, которые используют тот же торф в качестве наполнителя.
№3 — туалет с компостной ямой
Еще один вариант, идеально подходящий для дачного участка, – туалет, производящий компост. Как известно, компост – прекрасное органическое удобрение для растений.
Натуральное удобрение никогда не будет лишним, а специальная технология позволяет производить его ускоренными темпами практически из ничего.
Чтобы компост насыщался кислородом, его нужно регулярно рыхлить. Для этого предусматривается специальный рычаг для ручного перемешивания
Сортир оснащают компостной ямой. Лучше, если их будет две, так можно будет поочередно использовать каждую из них, пока компост созревает.
Ямы конструируются таким образом, чтобы можно было без труда извлекать готовое удобрение. Такой дополнительный функционал придется по душе тем, кто беспокоится об экологии.
Варианты постройки туалетов

Бывает несколько видов туалетов в виде скворечника, шалаш, избушка или домика. Чертеж дачного туалета с размерами типа «Скворечник» выполняется из дерева, и обшита любым другим материалом. Строится она над выгребной ямой. Если вам сложно самостоятельно составить чертеж, можно воспользоваться готовыми проектами.
При строительстве следует использовать строительный уровень чтобы контролировать ровное размещение конструкции. Не стоит забывать про наличие вентиляции, в качестве которой может быть труба. Она должна быть выше уровня крыши. Для того чтобы утеплить туалет можно использовать пенопласт, украсить внутри можно по желанию.
Готовый проект «Скворечника» с размерами

Основываясь на чертеж дачного туалета «Скворечник» строим «Шалаш», он имеет более сложную конструкции, но результат того стоит. «Шалаш» имеет много разных вариантов оформления, для этого можно использовать свою фантазию или интернет. Размеры можно использовать из предыдущего проекта.
Начинать строительство нужно с ямы туалета, в ней будут размещены бетонные блоки.
Чертеж дачного туалета «Шалаш»

Особенной частью данной постройки является двускатная крыша в форме треугольника. Если это дачный туалет чертежи размеры подбираются индивидуально в связи с количеством людей, которые будут пользоваться туалетом.
Стройка состоит из нескольких этапов. Изначально монтируем фундамент с использованием изоляционного материала, который защитит от влаги.
Строительство «Шалаша» начинается с установки фундамента, затем нижней части каркаса 1 на 1метр и постройки выгребной ямы. Основание нужно обработать антисептиком.
Дальше нужно построить переднюю и заднюю часть каркаса используя чертежи, которые вы составили или готовые. На заключительном этапе следует доработка каркаса.
Туалет можно обшить выгонкой или оставшимися с работы досками. Крышу можно изготовить из различных материалов длиной 1,8 м, она упирается на переднюю и заднюю части каркаса и закрепляется. Материал для крыши можно подобрать в зависимости от вашего вкуса. Это может быть металл, дерево, крыша из шифера или же профнастил.
При установке двери следует сразу же прикрепить к ней ручку и крючок. По окончанию работ нужно обработать туалет лаком или краской для улучшения внешнего вида постройки.
Виды дачных туалетов
Рассмотрим три типа: люфт – пудр клозеты, биотуалеты.
Люфт-клозет
Получил своё название от вентиляционного канала, совмещённого с дымоходом. За счёт его нагрева образуется тяга. Естественно, никаких запахов. Летом для создания тяги в нижний отдел дымохода встраивают простейший нагреватель типа лампы накаливания на 15 – 20 Вт.
Яма периодически откачивается.
Должен иметь одну наружную стену, в ней устраивается форточка.
Рис. 3. 1 – дымоход; 2 – люфт-канал; 3 – утеплённая крышка; 4 – стандартный канализационный люк; 5 – вентиляционная труба; 6 – глиняный замок; 7 – кирпичные стены.
Рис. 4. Внутридомовой люфт-клозет с индивидуальной вентиляцией
Довольно сложная, но безупречная в санитарном отношении конструкция. Расчёт объёма такой: при очистке раз в год 1 куб на человека: при четырёх – 0,25 куба. При любых расчётах глубина не менее 1 метра: уровень содержимого не должен быть менее 50 см от земли.
Яма герметична: по глиняному замку заливается бетонное дно, стены также бетонные или обкладываются кирпичом. Внутренние поверхности изолируют битумом. Вентиляционное отверстие всегда должно быть выше обреза трубы, по которой поступают отходы.
Конечно, такая схема не совсем вписывается в понятие дачный домик, но этот тип туалета не вызовет претензий ни у соседей, ни у органов местной власти
Это очень важно!. Такая же конструкция уличного типа
Такая же конструкция уличного типа.
Рис. 5; 1 – вентканал; 2 – герметичная крышка; 3 – глиняный замок; 4 – герметичная оболочка ямы; 5 – содержимое; 6 – отбойная доска; 7 – вентиляционное окно.
Конструкций стульчака достаточно много, выпускается именно для таких туалетов и санфаянс.
Рис. 6. Унитаз для люфт-клозетов.
Диаметр внутреннего отверстия 300 мм, крышка в комплект не входит.
Очистка
Со временем в яме образуется ил, который не даёт жидкости дренировать. В результате яма быстро заполняется.
Для того чтобы его восстановить фильтрацию, народные умельцы советуют перемешать содержимое химическими способами: негашёной известью, карбидом кальция, дрожжами. Положительный эффект может наблюдаться в 1 – 2 случаях из 10. В остальных – крупные неприятности.
Сегодня есть широчайший ассортимент биологических средств и стимуляторов для выгребных ям, которые без шума и пыли ликвидируют ил, превратят содержимое в компост, пригодный для выращивания даже овощных культур.
Конечно, для этого нужно время: не менее 2 – 3 лет в зависимости от среднегодовой температуры, точного соблюдения инструкции производителя, особенно по срокам внесения. От запаха можно избавиться в течение нескольких недель.
Если это не имеет практического смысла или противоречит культурным традициям, вызов спецавтомобиля решит все проблемы. Когда такие визиты покажутся затратными, время подумать о другом варианте, который рассмотрим ниже.
Санитарные нормы
Возводить дачный туалет своими руками с выгребной ямой придётся с учётом того, что при среднесуточном стоке менее 1 кубометра она может иметь открытое дно, свыше – только закрытое.
Освобождается она от содержимого не реже 2 раз в год. Сигнал для этого – уровень содержимого менее 35 см от уровня земли.
Дезинфекция выгребных ям уличных уборных проводится смесью такого состава.
- Известь хлорная 10%.
- Гипохлорид натрия 5%.
- Нафтализол 10%.
- Креолин 5%
- Метасиликат натрия 10%.
Чистая сухая хлорка запрещена: выделяет смертельно опасный хлор при увлажнении.
Пудр-клозет
Здесь яму заменяет ёмкость небольшого размера. Имеются вёдра с герметичной крышкой, которую снимают перед процедурой. По её окончанию содержимое «припудривают» органическим материалом. Запах при открытой крышке есть, особенно в жаркое время. Использование биопрепаратов его существенно снижает.
Рис. 7. 1 – вентиляционное окошко; 2 – крышка; 3 – стульчак; 4 – ёмкость; 5 – деревянный каркас; 6 – основа каркаса; 7 – гравийно-щебневая засыпка; 8 –дверь.
Преимущества такой конструкции в том, что уличный туалет для неё не обязателен. Это может быть уголок хозяйственной постройки, подвала. Наличие вентиляционного окошка или трубы обязательно.
Пудр-клозет легко трансформируется в компостный и обратно. Рациональное решение – комбинация его с душем или хозяйственным помещением.
Рис. 8. Совмещённое строение.
Современные модели представляет Елена Малышева.
Электрический туалет оставляет после себя горстку золы, но использовать её в качестве удобрений нельзя. Это относится и к химическим устройствам.
Проекты надстроек для дачного туалета
При выборе подходящего проекта дачного туалета особое значение имеет подбор материала. Именно он в наибольшей степени задаёт параметры будущего здания. Существует несколько типичных вариантов, о которых и пойдёт речь дальше.
Туалет из кирпича
Преимущества данного материала можно перечислять до бесконечности. Он устойчив к атмосферным влияниям, одинаково хорошо сохраняет тепло и прохладу, является экологически чистым. Мало того, он позволяет придать строению любую форму.
Основой данного проекта является фундамент. Без него создание дачного туалета из кирпича просто невозможно. Отдельно нужно упомянуть качество кладки. Это настоящее искусство класть кирпич на века. Сверху строение накрывается крышей, материалом, для которой в большинстве случаев служит шифер.

На картинке вы видите пример смежного проекта. В одной конструкции совмещаются туалет и душ. Это не только практично, но и позволяет сильно сэкономить на стоимости строительных материалов.
Деревянный туалет
Проект деревянного дачного туалета — это классика. Его постройка занимает минимум времени, но чтобы сооружение служило вам верой и правдой, необходимо в процессе работы чётко следовать намеченному плану.

На картинке представлен один из самых популярных среди дачников вариант — теремок. Как видите, он обладает небольшим внутренним пространством и малыми габаритами. Это позволяет установить его где угодно. Также стоит отметить эстетичный внешний вид.
Туалет из металла
Этот вариант проекта придётся по душе тем, кто хочет сэкономить время и деньги. При постройке можно использовать листы металла, оставшиеся от постройки дома. Единственное, о чём нужно позаботиться — это внутренняя обшивка. Конечно, без неё можно обойтись, но зимой в таком сооружении будет находиться весьма проблематично.

Главный плюс проекта — отсутствие необходимости в каких-либо знаниях. Построить такой дачный туалет способен практически каждый. Это самый малозатратный вариант, какой только можно представить
Единственное, чему нужно уделить внимание — это стульчаку. Его лучше всего сделать из дерева, чтобы было удобно сидеть
Пошаговая инструкция по строительству домика

Схема возведения туалета в форме шалаша
Доступный для новичка в строительном деле вариант постройки туалета – выгребная яма и конструкция типа «Шалаш» из дерева.
Необходимые материалы

Древесина – самый распространённый материал для возведения дачного санузла
Чтобы возвести на дачном участке простой, но удобный санитарный домик, понадобятся:
- Бруски и доски из сухой древесины
- Саморезы и шуруповёрт
- Молоток и гвозди
- Клей
- Пенопласт в качестве утеплителя
- Шифер или рубероид для крыши
- ДВП либо фанера для отделочных внутренних работ
- Уголки из металла
- Фурнитура (пластиковая или деревянная ручка, крючок для запирания)
- Набор из сиденья с крышкой

Оборудование ямы из бетонных колец большого диаметра
Обустройство выгребной ямы потребует расходов на покупку:
- Щебня
- Мелкого речного песка
- Цемента (любой марки и модели)
- Металлической сетки с мелкими ячейками для укрепления стенок
- Армирующей решётки либо кусков арматуры для повышения прочности фундамента
Потребуются такие инструменты:
- штыковая и совковая лопаты
- бур и перфоратор (если грунт каменистый, глинистый)
- болгарка с дисками для работы с металлом и камнем
- лобзик
- угольник
- измерительная рулетка
- строительный уровень

Лопаты
Если есть финансовая возможность, то выгребную яму можно оборудовать из трёх, поставленных друг на друга, бетонных колец. Первые 2 служат своеобразными отстойниками, а нижнее фильтрует нечистоты перед их попаданием в почву.
В случае, когда бюджет сильно ограничен, используют старые покрышки от колёс грузового транспорта.
Как вырыть выгребную яму
Работа начинается с разметки участка. Далее выполняют следующие шаги:
1
Выкапывают (бурят) квадратную или круглую яму в почве на глубину 2 м. Грунт выбирают, на дно насыпают дренаж – смесь щебня с песком
2
Стенки укрепляют сеткой, а сверху набрасывают цементный раствор, выравнивая поверхность

Армирующая сетка укрепляет стенки канавы
2
Высохший цемент штукатурят, дают высохнуть

Оштукатуренные бетонные стенки выгребной ямы
3
Поперёк отверстия ямы в грунт на ребро на небольшом расстоянии устанавливают деревянные доски, обработанные антисептическим составом. Они служат основой для заливки фундамента
4
По краям рва делают опалубку на высоту будущего фундамента. Отверстие закрывают полиэтиленовой плёнкой, закрывают сверху армирующей решёткой
5
В плёнке оставляют 2 отверстия – для установки унитаза и для выгребного технического выхода
6
Пространство внутри опалубки заливают цементным раствором, разравнивают, ориентируясь по маячкам либо строительному уровню

Заливка фундамента ямы
7
Полностью высохший фундамент готов к установке наземной части. Выгребное отверстие перед этим закрывают специальным люком
Порядок строительных работ
Далее переходят к возведению конструкционной части санузла – деревянного домика в виде шалаша. Рекомендуется следовать такой инструкции:
1
Начинают с монтажа нижнего основания каркаса из брусьев 5х5 см. Из деталей сбивают квадрат-опалубку, сверху кладут настил из досок

Отверстие для установки сидения
2
В полу выпиливают отверстие для стульчака и технологический проём для люка выгребного отверстия
3
Деревянное основание промазывают антисептическими пропитками
4
Из брусьев собирают фасадную и оборотную части конструкции по заранее подготовленным схемам. Готовые детали выглядят как равнобедренные треугольники с тремя перекладинами вдоль, расположенными на расстоянии. Изнутри обе заготовки отделываются полосками ДВП

Схемы сборки фасадной и оборотной частей
5
Фасад и оборот крепятся к основанию саморезами и укрепляются металлическими уголками
6
Далее ведётся монтаж крыши (она же служит боковыми стенками) из досок длиной 1,8–2 м, укладка кровельного материала и монтаж конька. Сверху предусматривают вентиляционное отверстие и трубу

Кровлю закрывают рубероидом, шифером либо металлочерепицей
7
На фасад устанавливается дверь, внутри монтируется постамент для сиденья

Постамент для сиденья
8
Древесину грунтуют и лакируют, по желанию ведётся обработка морилкой
9
В последнюю очередь устанавливают ручку, сиденье унитаза, крючок для закрытия двери
Септик для дома — канализационная яма без откачки: устройство, поэтапное изготовление своими руками из бетонных колец и другие варианты (15 Фото & Видео)
Как высчитать объем выгребной ямы?
Перед началом работ по возведению столь нужного строения определяют оптимальные размеры резервуара. Для уличного туалета нужен котлован глубиной от 1500 до 2000 мм. Боковые стенки произвольны — 1000х1000 мм, 1000х1500 либо 1500х1500 мм, однако очень широкую яму будет труднее накрыть. Нецелесообразно копать котлован глубиной более 3000 мм.

Совсем другое дело, если котлован роют для канализационной системы, идущей от дома. Чтобы избежать чрезвычайных происшествий, необходимо учитывать количество проживающих. Среднесуточная норма потребления воды человеком — около 150 л, поэтому минимальный объем ямы для семьи из 3 жильцов будет 12 м3. Если семья не живет на даче постоянно, а бывает там «набегами» только в выходные дни, котлован можно уменьшить.
Как сделать туалет из досок для дачи с выгребной ямой
Для возведения дачного туалета используются различные материалы. Наибольшее распространение получили доски.

Процесс строительств в данном случае выглядит следующим образом:
1. Выкапывается выгребная яма достаточно объема. Чаще всего около 2 – 2,5 кубов. Ее формируют таким образом, чтобы какая-то часть оказалась за пределами кабинки. Дно ямы стоит сделать с небольшим уклоном в сторону будущего выгреба. Чтобы обеспечить достаточный уровень герметизации, выгребную яму стоит обложить кирпичом, блоками или другими материалами;

2. Готовится фундамент по туалет. Для этой цели можно использовать песчано-цементные блоки, которые заполняют цементом и слегка заглубляют;

3. Изготавливается нижнюю обвязку туалетной кабинки. Для этой цели используется доска размером 100 на 50. Нарезаются элементы нужной длины. Обычно по 1 метру. Для соединения досок между собой используются монтажные уголки. Тщательно выверяется пространственное положение каждого элемента и равенство диагоналей. Нижнюю обмазку обрабатывают составом, предотвращающим гниение древесины;

4. Нижнюю обвязку устанавливают на фундамент, предварительно уложив гидроизоляцию, и крепят к основанию;

5. Собирают каркас будущего туалета, используя бруски размером минимум 40 на 60 мм. Высота вертикальных стоек отличается: два по 2 м, два – по 1,8 м. Это позволяет сформировать необходимый уклон у кровли. Закрепляются горизонтальные планки и собирается кровля. Для обеспечения достаточной жесткости устанавливаются раскосы;

6. К нижней обвязке крепятся брусы, на которые будут укладываться доски пола толщиной минимум 25 мм. Все элементы обрабатываются защитным средством. Каркас обшивается досками толщиной 25 см. Для крепления используют гвозди. Вырезается отверстие подходящего размера. При желании монтируется стульчак подходящей конфигурации;

7. Из брусков размером 40 на 60 мм изготавливается каркас двери. Обшивается досками. Готовая дверь навешивается на петли. Обязательно предусматривается зазор между створкой и стенками. Крепятся ручки, защелки;

8. Монтируется кровля. Укладывается кровельный материал, например, профнастил;

9. К нижней обвязки крепится доска. Выполняется обсыпка.

Выбираем материал для дачного туалета
Чаще всего на загородных участках устанавливают деревянные конструкции туалетов. Это объясняется простотой их строительства, доступностью и дешевизной материала. Однако даже обработанная антисептиками древесина со временем гниет и разрушается, поэтому такие туалеты весьма недолговечны. В случае если чертеж дачного туалета был выполнен дилетантом, то этот процесс может идти еще быстрее в случае неправильной конструкции основания пола или ошибок в обустройства кровли.
Наиболее долговечным считается кирпичный туалет, который довольно легко соорудить своими руками, чертежи при этом можно не искать
Важно правильно разметить основание, построить фундамент и соблюдать вертикальность стен. Только так можно надеяться на достаточную прочность сооружения
Не менее надежным является и металлический дачный туалет, чертежи и размеры которого – не проблема в век информационных технологий. Вот только для его постройки понадобится сварочный аппарат и умение с ним обращаться. Несмотря на это такие конструкции весьма просты в изготовлении, поэтому их с успехом используют на многих дачах.
Внутреннее обустройство
При внутреннем обустройстве сооружения стоит уделить внимание гигиеническим требованиям. Отделка стен и пола должна быть устойчива к влаге, не впитывать запахи, легко чиститься от загрязнений, не гнить
Такими свойствами обладает кафельная плитка, лакированные доски, ламинат, штукатурка. Их можно комбинировать.
Основа туалета – унитаз. Для дачного сооружения подойдут такие виды сантехники:
Пластиковый
Легкий (что важно для домика без фундамента), простой в уходе, устойчивый к температурам унитаз средней прочности. Недорогой вариант, который выбирают, если используют дачу не часто.
Керамический
Тяжелый, потому требует дополнительного укрепления пола. Прочнее, долговечнее, но дороже пластикового. Подходит для постоянного применения.
Деревянный. Дешевый, но недолговечный вариант. Изготавливается самостоятельно из короба и отдельно купленного стульчака. Применяется в садовых туалетах, поскольку его невозможно подключить к канализации.
Для дачи выбирают переносные унитазы, монтаж которых занимает минимум времени и сил. Дорогие монолитные предметы сантехники с термосиденьем, подсветкой, автосмывом и другими дополнительным функциями приобретают только в том случае, когда частный дом – это основное место проживания семьи.
Помимо унитаза, в туалет устанавливают полки, держатели для туалетной бумаги, крючки, вешалки для полотенец. Их размещают на дверях или задней стенке. Украсить домик можно растениями и пучками трав – они придадут интерьеру живости и избавят от неприятного запаха.

















































